This was my third-year college project. I was given pre-designed house plans with a general layout of the rooms as a starting point for the project. The house is located on the side of a sea cliff. The focus of the design was connections: the house connects to the context through similarly coloured materials; the interior elements connect to the house through materials; connections to the surrounding context through views. The house, its elements and context are one.
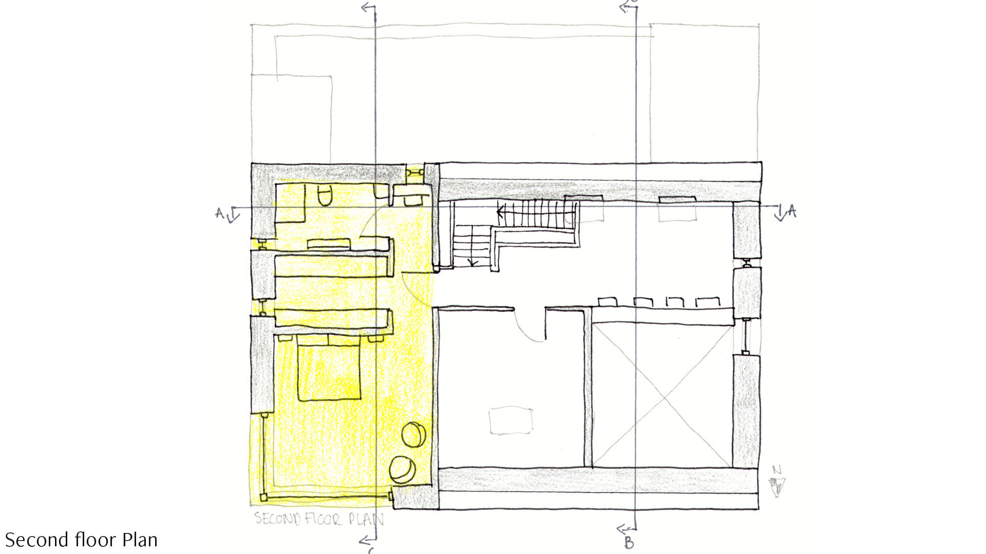
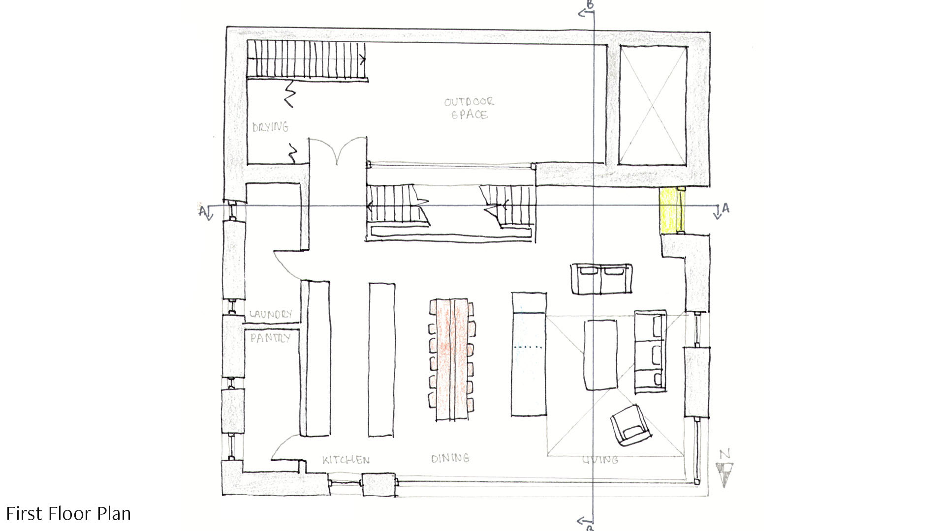
Floor Plan
Sections
Elevations
Entry Threshold
The entry threshold is a welcoming place that is essential for security, privacy, and protection from the weather. The threshold is a transition space from the outside world to the comfort of home and vice versa. This transition creates a different experience for each user whether they are a household member or a guest.
The idea of having the outside transitioning into the inside can be symbolic or can be shown more literally through the use of materials. Cobble stones flank the path outside and gradually fade away the further into the house you go. The user knows they are home when they feel the concrete floor and timber walls in the threshold. The continuation of these materials around the house connect it all together.
The front door is made from steel that has insulation between it. This material will be able to withstand the harsh wind and rain while not letting any warmth escape the home. The door is two metres in height to emphasise the verticality of the home.
The Hearth
The hearth throughout history has been a centre point in the home. Daily life revolved around this element. With many functions including cooking, cleaning, and drying clothes. People would gather around the hearth and tell stories.
From this, the design of the hearth is re-imagining it as the centre of place in a modern home, bringing back the multifunctional purpose it once had. The hearth is open on three sides, linking the dining space and living space. The storage shelf can be used for books which connects the window seat to the centre of place as well.
The hearth is a solid fixed element in the design, so it is made from concrete to emphasise this. Using the same material as the floor, concrete, makes it seem as if the hearth is formed from the floor. The seating arrangement in the living space allows the family to gather at the hearth.
The Family Table
The family table has always been a busy hub in the home. This is the place where the family joins together to have meals, entertain guests, study, create memories and live important moments of their everyday life. We come together and celebrate important milestones and experiences with each other at the kitchen table.
That idea of connection comes through to the kitchen table as well. Similarly, the table has concrete legs connecting it with the house, like the hearth. There is a glass panel that runs through the middle of the table symbolising the hearth opening on three sides. The family can comfortably fit around the large table and have enough room to entertain guests. The dining chair is designed to coordinate with the table.
The family table is a place of festivity where we invite not just our family but our friends to join together to communicate, eat, plan and play.
The Windows
The windows are the eyes of the building. It is a place to view nature, to get away from the hustle of everyday life and sit in peace.
The focus for the design of the window is to create a reading nook. The window becomes its own space as it breaks up the large glazed panel on the West elevation. The shelf on the hearth connects to the window emphasising on the big idea. The user can feel protected from the elements outside as they sit to read, or people watch.
Models of Spaces
Back to Top